Составление планировки коммерческих помещений
Действия
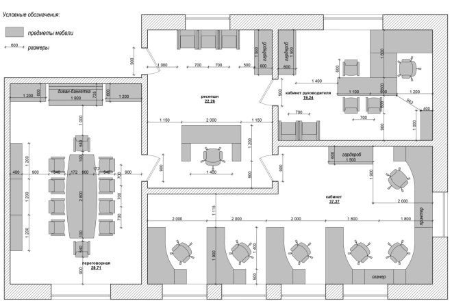
Сделать коммерческое помещение комфортным и удобным для посетителей сложнее всего. Я сделаю планировку офиса согласно вашим требованиям.
Благодаря этому я могу решать любые проблемы в помещении, которые возникают у клиентов и сотрудников. Планирую планировку таким образом, чтобы в последствии на ней можно было создать классный дизайн для вашего бизнеса.
Планировка – это основа, а каждый объект требует индивидуального подхода. Окажите помощь в работе вашего бизнеса, чтобы ваши бизнес процессы работали лучше и эффективнее. При проверке, клиенты благодарят и отмечают улучшение атмосферы в коллективе после произведенных изменений.
Воспользовавшись моими услугами, Вы поймете, что любое помещение можно сделать комфортным. Этот момент оценят не только сотрудники, но и посетители, которым обязательно захочется тужа же вернуться.
Можно ли получить проект большой площадь?
Площадь выбирается в разных гигсах. При необходимости также можно связаться со мной, чтобы обсудить те или иные детали.
Вы работаете со всеми инженерными системами?
Да, я занимаюсь проектированием всех прокладываемых инженерных систем.
Отлично проделанная работа. Исполнитель реагирует на просьбы заказчиков
Спасибо за работу, все выполнено хорошо, всем доволен!
Немного задержал из за выходных. Зато недорого. Заказываю в 1-й раз! Спасиба
Хочется написать очередной живой положительный отзыв. Закрыто уже 5 заказов и особенно хочу отметить - это работу с клиентами. Постоянно на связи, и всегда готов помочь и решить любой вопрос, всегда идет на встречу.
Работа выполнена в полном объеме и в срок. Исполнитель вовремя отвечал на все вопросы. Обязательно обращусь еще.
Обращаюсь повторно. Выполняется все очень оперативно! Я доволен!
Очень хорошо выполнил заказ!Все подробно обьяснил и быстро главное)Буду обращаться еще ,однозначно)
Всё четко, задачи выполнены на 100%! Рекомендую исполнителя!
Как всегда всё чётко и быстро сделано. Буду обращаться еще)
Всегда оперативно принимает заказ в работу. Точен в исполнении, идёт на встречу заказчику по всем вопросам. Рекомендую!
- Цена
- 17.000,00 ₽
- Срок
- 2 недели
- Цена
- 500,00 ₽
- Срок
- 1 день
- Цена
- 500,00 ₽
- Срок
- 2 дня
- Цена
- 11.000,00 ₽
- Срок
- 3 дня
- Цена
- 500,00 ₽
- Срок
- 1 день
- Цена
- 20.000,00 ₽
- Срок
- 1 неделя
- Цена
- 1.500,00 ₽
- Срок
- 1 день