Экспресс планировка квартиры
Действия
Здравствуйте!
Имею большой опыт работы с планировками жилой и нежилой недвижимости.
Выполню планировочное решение для вашей квартиры, быстро и профессионально.
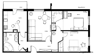
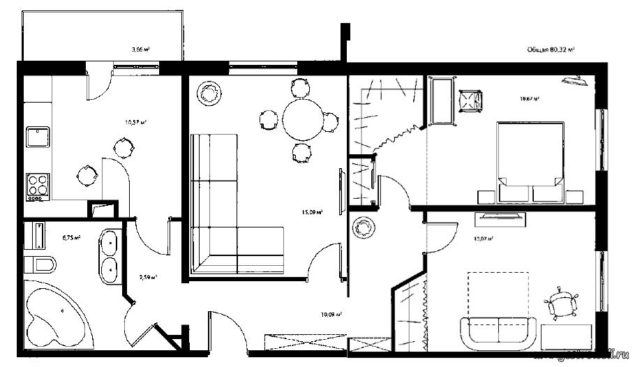
Итог работы: обмерочный план + 2 варианта планировочного решения вашей квартиры с расстановкой мебели (мебель с размерами), при необходимости вы сможете в понравившемся варианте заказать план монтажа, демонтажа, план электрики и потолков с освещением, это вам поможет быстро приступить к реализации ваших планов.
Сделаю планировку в виде файла pdf.
Нужно для заказа:
От вас предварительно необходимо предоставить техническое задание с вашими пожеланиями:
- обмерочный план или план БТИ (все размеры разборчивы), указать расположение кухни, с/у и коридора от застройщика.
- перечень помещений, которые хотите иметь в итоге в планировке.
- перечень мебели и оборудования, по каждому помещению.
Можете писать текст в любом виде, а также можете пользоваться прикрепленным файлом.
Сможете сделать заказ по квартире со свободной планировкой?
Да, Если вы знаете где и какие стены будете ставить и будут ли они запланированы.
Как составить тз правильно?
А тут нет такого, что правильно или нет, главное, чтобы в нем было прописано детальное ваше пожелание.
Нужно ли делать план перед началом ремонта?
Это и есть самое удачное время для этого.
Отличная работа! Всё сделано быстро и качественно, в полном объёме, который заказывали! Надёжный исполнитель, будем обращаться ещё!
Работа была качественно выполнена, в быстрый срок. Спасибо большое Вам!!!
Быстрее чем я предполагал. Комфортно общаться. Советую.
В очередной раз благодарю за работу. Все в соответствии с пожеланиями. Автор очень внимателен ко всем замечаниям, быстрая реакция и правки при необходимости. Спасибо)
Заказ был выполнен оперативно, раньше срока. Продавец был на связи. Рекомендую, если цените скорость и качество.
Продавец всегда отвечает на все вопросы,делает корректировки ,если они нужны и в общем хорошо все делает!
Всё сделал супер-быстро! Только скинул задание и через некоторое время готово! Огонь!
Рекомендую этого человека! Отзывчивый. Все разъяснил. И сделал быстрее установленного срока. Молодца.
Спасибо за выполненную работу, надеемся гарантийные обязательства так же хорошо будут исполнены.
Продавец отзывчивый, ответил на все вопросы. Задачу выполнил быстрее оговоренного срока. Рекомендую
- Цена
- 1.500,00 ₽
- Срок
- 1 день
- Цена
- 500,00 ₽
- Срок
- 1 день
- Цена
- 500,00 ₽
- Срок
- 2 дня
- Цена
- 11.000,00 ₽
- Срок
- 3 дня
- Цена
- 20.000,00 ₽
- Срок
- 1 неделя
- Цена
- 500,00 ₽
- Срок
- 1 день
- Цена
- 17.000,00 ₽
- Срок
- 2 недели