Детальная планировка или перепланировка целого дома, городской квартиры или отдельной комнаты
Действия
Не знаете, как распланировать свободное пространство? Я создам для вас наилучшее планировочное решение, учитывая ваши пожелания.
В данный момент предлагаю Вам разработку планировки для дома и квартиры. Обращаюсь с работой очень ответственно! С вниманием к деталям и, конечно же, к вашим пожеланиям.
В задание входит:
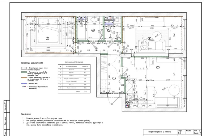
✅ 3 варианта планировки с расстановкой мебели и сантехники (помещение площадью до 10 кв. м).
✅Изменение первоначального ТЗ;
✅ Итоговый вариант документа в pdf. Если нужен исходник в dwg или DivX, можно заказать дополнительную опцию.
Планировка - главный элемент пространства для жизни. Ее проработка дает возможность по-новому взглянуть на квартиру или дом, найдя в нем свободное местечко для всего, что угодно.
Обращаясь ко мне, Вы получите профессиональный проект, который без правок и дополнительных расчетов можно передавать в работу бригаде! Это главный момент, о котором часто забывают неопытные проектировщики.
Можно ли получить проект большой площадь?
Площадь выбирается в разных гигсах. При необходимости также можно связаться со мной, чтобы обсудить те или иные детали.
Вы работаете со всеми инженерными системами?
Да, я занимаюсь проектированием всех прокладываемых инженерных систем.
Получить возврат денег за недовыполненный заказ проблематично. Потому что требуют либо хороших отзывов, либо денег. Пустая трата времени! Я не советую 🤬
После принятия заказа в работу исполнитель сказал что понял суть работы но потом через время начал строчить собственно что ещё не приступил по причине недопонимания. Благо мы растолковали задачку и исполнитель практически сразу выполнил.
Для читающих отзывы: будьте внимательны, есть вероятность потерянного времени. 🤨
Заказ исполнен, жалоб по объему оказанных услуг нет. Были периоды споров, но мы договорились.
Отличный исполнитель, но дам вам один очень важный совет: Научитесь слышать людей и будте более коммуникабельны в сотрудничестве.
Благодарю за работу, уже достаточно времени сотрудничаем, из многих выбрали именно, так как с ним комфортно работать, он открыт, отзывчив, ответственно и добросовестно подходит к выполнению задачи.
Заказ выполнен хорошо, в полном соответствии с описанием, быстрее указанного срока. Всегда оперативно отвечает на сообщения, видно ответственное отношение к работе. Буду работать с данным исполнителем еще. В итоге: рекомендую всем!
Задача выполнена, не первый раз обращаюсь к исполнителю, рекомендую!
Заказ делал подольше чем ждал, но в целом доволен оценка 4/5. 🙃
Отличная работа, всё быстро, точно и как заявлено. Исполнителя рекомендую тем, кто хочет получить отличный результат.
- Цена
- 1.500,00 ₽
- Срок
- 1 день
- Цена
- 500,00 ₽
- Срок
- 1 день
- Цена
- 11.000,00 ₽
- Срок
- 3 дня
- Цена
- 17.000,00 ₽
- Срок
- 2 недели
- Цена
- 20.000,00 ₽
- Срок
- 1 неделя
- Цена
- 500,00 ₽
- Срок
- 1 день