Выполню планировку и дизайн квартиры
Действия
Создам качественные чертежи вашего помещения с учетом ваших пожеланий. Задержка до 7 дней в зависимости от объема работ.
Что вы получите, работая со мной?
1. Качественные чертежи вашего помещения.
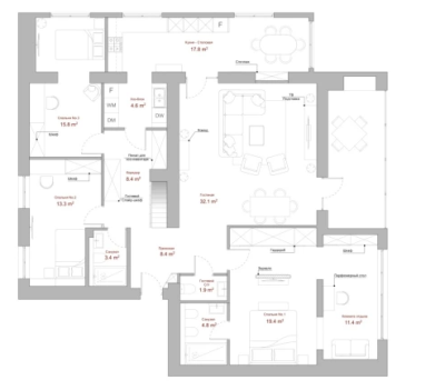
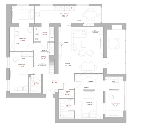
1.0 План измерений
1.1 Планировка — расстановка мебели
1.2 Дизайн напольных покрытий - Сервис
1.3 План потолка - Обслуживание
1.4 Схема подключения - Обслуживание
1.5 Схема подключения - Потолочное освещение - Обслуживание
1.6 Чертеж влажных помещений (сан.узел, кухня) - Сервис
1.7 Обустройство стен – Обслуживание
1.8 План раскладки стен C/U с количеством плиток
(керамогранит) - Сервис
1.9 Чертежи дизайнерской мебели - Сервис
1.10 Визуализация спроектированной мебели - Услуга
2. Работа выполнена в кратчайшие сроки, согласно объему работ.
3. Возмещение в случае невыполнения работы.
Важно:
Перед началом проекта необходимо обсудить и согласовать техническое задание, включая детали проекта и предпочтения клиента.
сколько времени потребуется на выполнение задания?
5 дней на выполнение
Что необходимо перед началом сотрудничества?
необходимо обсудить и согласовать техническое задание, включая детали проекта и предпочтения заказчика.
Быстрое и качественное исполнение. Никаких проблем. Исполнителя рекомендую.
Все сделано на высшем уровне, все пожелания были учтены, очень доволен проделанной работой!
Выполнение заказа БЫСТРО, КАЧЕСТВЕННО и отсыпает "с горкой" - это тоже отдельная приятность, как вишня на торте.
Признаю, Вы реально мастер! Все, буквально все что нужно было сделать, сделано без переписки, выноса мозга, пустых слов и пр. Жму руку! На днях сделаю еще один заказ.
Благодарна за работу! И за отзывчивость! Заказ выполнен вовремя, я довольна. Буду обращаться ещё ))
Большое спасибо, все качественно и с опережением по срокам.Будем обращаться еще!
Спасибо большое исполнителю. Обращаемся не первый раз, всегда все быстро и качественно. Отзывчивость и понимание на 100%. Обязательно будем обращаться снова.
Заказ выполнен очень хорошо. Спасибо, будем работать дальше.
Как исполнитель оперативно реагирует, всегда на связи, вежливый, пунктуальный. В целом очень довольны.
Добрый день! Заказ выполнен в полном объёме и кратчайшие сроки ,работа продавца понравилась.Поставленная задача была выполнена на 5+.Рекомендую! Обращусь ещё и обязательно посоветую знакомым.Спасибо!
- Цена
- 800,00 ₽
- Срок
- 3 дня